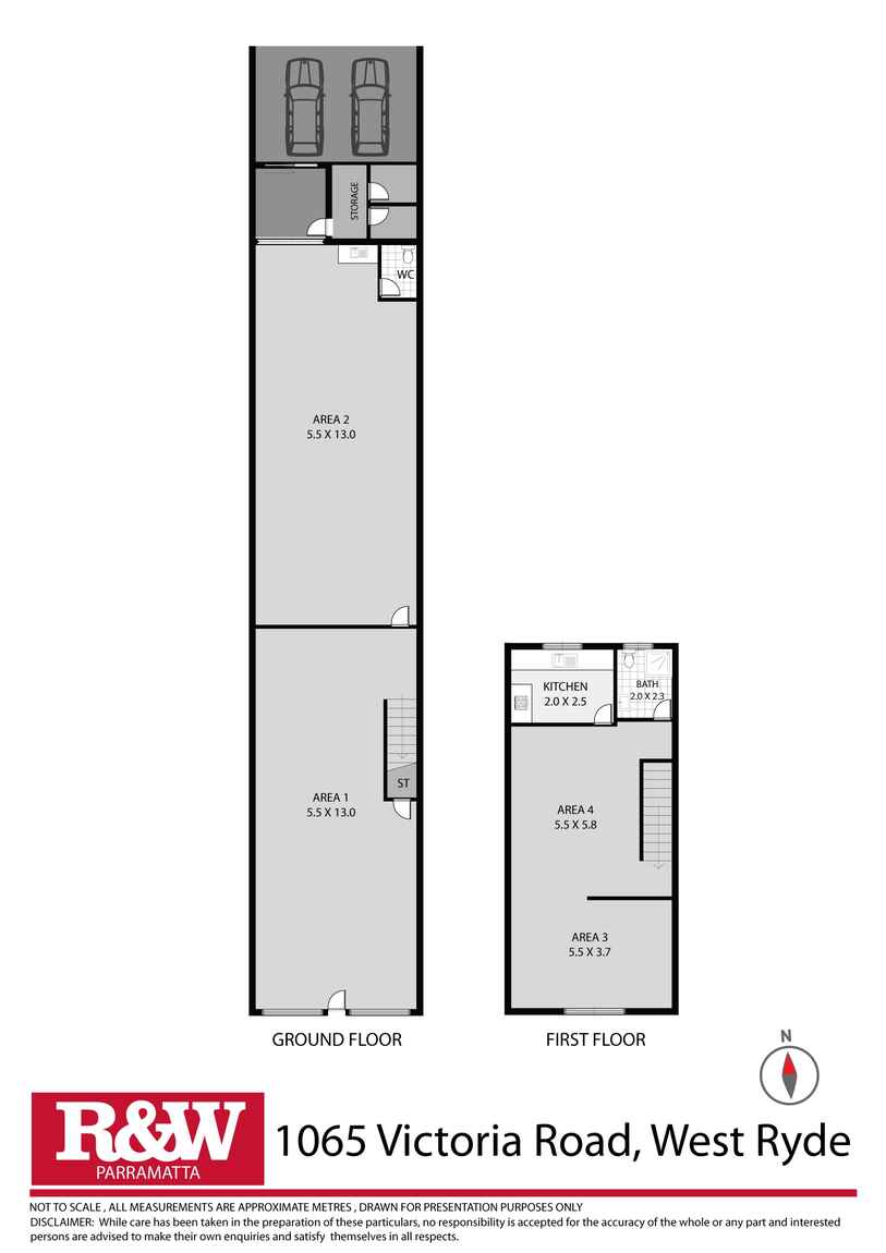
Property Details
- Prime ground floor retail plus storage at rear and first floor
- Main road exposure
- Conveniently located at a pedestrian crossing
- Will suit a variety of users (STCA)
- Short walk to the train station
- Rear lane access with 2 car spaces
- Kitchen & bathroom facilities
Building size
225 sqm (approx)

























